We are deep in the demo phase of our renovation. In other words, it can only get better from here! Right?
Most of the walls are open, ceilings are down, and floors are ripped up.
Here, take a look…
A view of our Master Suite – glamorous right?

The new bathroom will be to the left. Here is the full space:

Those two large openings are framed for the double hung windows that will go in, with a view towards the water. (Insert cast iron soaking tub).
Here is a better picture, where you can get a sneak peek at the water behind that plastic.

This is a shot looking back into the bedroom – it’s hard to tell, but there will be two closets with a hallway connecting to the sleeping area to the far left.

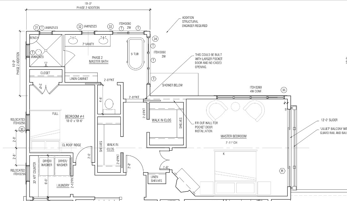
This floorplan will help give a better sense of the space – you can see the tub in the corner for reference (though we have decided to rotate it, and make the vanity a foot shorter – thinking this will feel a bit more spacious).

We will be replacing all of the windows with traditional double hung. And adding a large 12′ sliding door with Juliet balcony at the end – to take advantage of this view…
